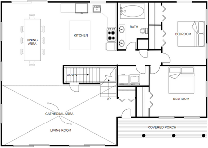
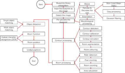
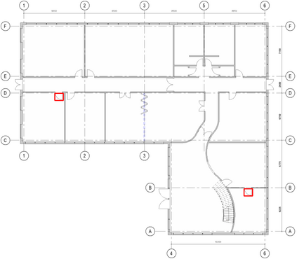
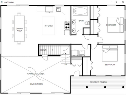
This report, commissioned by the WTW research network, investigates the use of AI in property risk assessment. It (i) reviews existing work on risk assessment in commercial and industrial properties and automated information extraction from building blueprints; and (ii) presents an exploratory 'proof-of concept-solution' exploring the feasibility of using machine learning for the automated extraction of information from building blueprints to support insurance risk assessment.


翻译:这份报告由WTW研究网络委托编写,调查在财产风险评估中使用人工智能的情况,(一) 审查商业和工业特性的风险评估和从建筑蓝图中自动提取信息的现有工作;(二) 提出探索性的“概念解决办法”探讨利用机器学习自动提取从建筑蓝图到支持保险风险评估的信息的可行性。

0
下载
关闭预览

相关内容

Automator是苹果公司为他们的Mac OS X系统开发的一款软件。 只要通过点击拖拽鼠标等操作就可以将一系列动作组合成一个工作流,从而帮助你自动的(可重复的)完成一些复杂的工作。Automator还能横跨很多不同种类的程序,包括:查找器、Safari网络浏览器、iCal、地址簿或者其他的一些程序。它还能和一些第三方的程序一起工作,如微软的Office、Adobe公司的Photoshop或者Pixelmator等。
神经常微分方程教程,50页ppt,A brief tutorial on Neural ODEs
专知会员服务
74+阅读 · 2020年8月2日
Keras François Chollet 《Deep Learning with Python 》, 386页pdf
专知会员服务
161+阅读 · 2019年10月12日
强化学习最新教程,17页pdf
专知会员服务
182+阅读 · 2019年10月11日
【哈佛大学商学院课程Fall 2019】机器学习可解释性
专知会员服务
105+阅读 · 2019年10月9日
【SIGGRAPH2019】TensorFlow 2.0深度学习计算机图形学应用
专知会员服务
41+阅读 · 2019年10月9日
ACM MM 2022 Call for Papers
CCF多媒体专委会
5+阅读 · 2022年3月29日
IEEE TII Call For Papers
CCF多媒体专委会
3+阅读 · 2022年3月24日
AIART 2022 Call for Papers
CCF多媒体专委会
1+阅读 · 2022年2月13日
【ICIG2021】Check out the hot new trailer of ICIG2021 Symposium9
中国图象图形学学会CSIG
0+阅读 · 2021年12月17日
【ICIG2021】Check out the hot new trailer of ICIG2021 Symposium8
中国图象图形学学会CSIG
0+阅读 · 2021年11月16日
【ICIG2021】Check out the hot new trailer of ICIG2021 Symposium6
中国图象图形学学会CSIG
2+阅读 · 2021年11月12日
【ICIG2021】Check out the hot new trailer of ICIG2021 Symposium2
中国图象图形学学会CSIG
0+阅读 · 2021年11月8日
【ICIG2021】Latest News & Announcements of the Industry Talk2
中国图象图形学学会CSIG
0+阅读 · 2021年7月29日
【ICIG2021】Latest News & Announcements of the Industry Talk1
中国图象图形学学会CSIG
0+阅读 · 2021年7月28日
A Technical Overview of AI & ML in 2018 & Trends for 2019
待字闺中
18+阅读 · 2018年12月24日
国家自然科学基金
0+阅读 · 2015年12月31日
国家自然科学基金
0+阅读 · 2014年12月31日
国家自然科学基金
1+阅读 · 2013年12月31日
国家自然科学基金
0+阅读 · 2013年12月31日
国家自然科学基金
0+阅读 · 2012年12月31日
国家自然科学基金
0+阅读 · 2012年12月31日
国家自然科学基金
0+阅读 · 2011年12月31日
国家自然科学基金
0+阅读 · 2009年12月31日
国家自然科学基金
1+阅读 · 2009年12月31日
Arxiv
31+阅读 · 2022年2月15日
Arxiv
12+阅读 · 2021年8月19日
Arxiv
37+阅读 · 2021年8月2日
Arxiv
36+阅读 · 2019年11月7日
VIP会员
相关VIP内容
神经常微分方程教程,50页ppt,A brief tutorial on Neural ODEs
专知会员服务
74+阅读 · 2020年8月2日
Keras François Chollet 《Deep Learning with Python 》, 386页pdf
专知会员服务
161+阅读 · 2019年10月12日
强化学习最新教程,17页pdf
专知会员服务
182+阅读 · 2019年10月11日
【哈佛大学商学院课程Fall 2019】机器学习可解释性
专知会员服务
105+阅读 · 2019年10月9日
【SIGGRAPH2019】TensorFlow 2.0深度学习计算机图形学应用
专知会员服务
41+阅读 · 2019年10月9日
相关资讯
ACM MM 2022 Call for Papers
CCF多媒体专委会
5+阅读 · 2022年3月29日
IEEE TII Call For Papers
CCF多媒体专委会
3+阅读 · 2022年3月24日
AIART 2022 Call for Papers
CCF多媒体专委会
1+阅读 · 2022年2月13日
【ICIG2021】Check out the hot new trailer of ICIG2021 Symposium9
中国图象图形学学会CSIG
0+阅读 · 2021年12月17日
【ICIG2021】Check out the hot new trailer of ICIG2021 Symposium8
中国图象图形学学会CSIG
0+阅读 · 2021年11月16日
【ICIG2021】Check out the hot new trailer of ICIG2021 Symposium6
中国图象图形学学会CSIG
2+阅读 · 2021年11月12日
【ICIG2021】Check out the hot new trailer of ICIG2021 Symposium2
中国图象图形学学会CSIG
0+阅读 · 2021年11月8日
【ICIG2021】Latest News & Announcements of the Industry Talk2
中国图象图形学学会CSIG
0+阅读 · 2021年7月29日
【ICIG2021】Latest News & Announcements of the Industry Talk1
中国图象图形学学会CSIG
0+阅读 · 2021年7月28日
A Technical Overview of AI & ML in 2018 & Trends for 2019
待字闺中
18+阅读 · 2018年12月24日
相关基金
国家自然科学基金
0+阅读 · 2015年12月31日
国家自然科学基金
0+阅读 · 2014年12月31日
国家自然科学基金
1+阅读 · 2013年12月31日
国家自然科学基金
0+阅读 · 2013年12月31日
国家自然科学基金
0+阅读 · 2012年12月31日
国家自然科学基金
0+阅读 · 2012年12月31日
国家自然科学基金
0+阅读 · 2011年12月31日
国家自然科学基金
0+阅读 · 2009年12月31日
国家自然科学基金
1+阅读 · 2009年12月31日
Top
微信扫码咨询专知VIP会员